技术中心
行业解决方案
随机文章选读
联系我们
  • 联系人:董先生
  • 联系电话:137-10902965

十级、百级、千级实验室洁净系统方案说明

文章来源://www.capeel.com/  2020年11月19日  点击数:12132

工程情况说明:

本工程为 某实验室设计,总净化面积XX平方米,实验室洁净等级有十级、百级、千级。实验室面积虽然不大,但它确是整个车间工艺流程的核心部分,洁净实验室能否正常运行,将直接影响到整个产品的质量。

十级、百级、千级实验室洁净系统方案说明

实验室设计说明:

   空调净化的设计是与工艺的布局、生产流程密切结合的。不同类型,不同用途的实验室空调净化系统都各有特点,下面来介绍此项目空调净化系统方案。

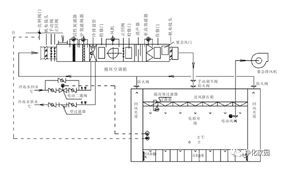
该实验室的十级、百级、千级区域均有温度和湿度的控制要求,空调系统用的洁净空气处理机组的冷源采用7/12℃冷冻水(或者蒸发温度为7℃的环保冷媒),加热采用45/40℃的热水(或者PTC电加热),加湿采用电极式加湿器;过滤器配置初、中、亚高效三级过滤器。洁净实验室内,千级及百级区域采用H14高效过滤器,十级区域采用U16超高效过滤器送风方式。采用的气流形式为顶部送风,气流经高架地板孔洞至回风夹道。百级、十级区域,H14高效过滤器及U16超高效过滤器需要满布。

实验室所配洁净空气处理机组的功能段组合顺序如下:新风段→初效过滤器段→回风段→中效过滤器段→冷盘管段→辅助电加热段→电极加湿段→送风机段→均流段→亚高效过滤段→出风段。

洁净空气处理机组原理图如下:


洁净实验室内隔墙采用双面岩棉彩钢板,液槽式吊顶龙骨及高架地板经喷涂防腐处理,混凝土楼板地面及墙面涂环氧树脂处理。新风、回风及排风管采用镀锌钢板,外加橡塑保温。

洁净系统空调自动控制:

洁净实验室正压控制:洁净空气处理机组采用变频风机电机,新风管上设置电动调节阀,用于控制房间新风量以及房间正压,由洁净实验室的正压值来调节电动调节阀的开度,使洁净实验室的正压值不随生产设备的排风量的变化而变化,电动调节阀的开度变化引起总送风管上的静压变化,根据其设定值来调节风机的频率,以达到控制目的。

洁净实验室湿度控制:洁净实验室的湿度由新风量来决定,控制洁净空气处理机组的送风状态点,根据送风状态设定值,来调节电极加湿器的加湿量。

洁净实验室温度控制:洁净实验室的湿度由洁净空气处理机组来保证,根据室内温度来调节表冷器回水管路上电动二通阀的开度。(直接蒸发系统的根据室内温度来调节室外压缩机的起停)。

原文来源://www.capeel.com/

更多
相关文章:
洁净实验室要求参考
药品生产企业微生物实验室设计
食品药品检验实验室设计原则

上一条:实验室模块化设计参考下一条:佰伦GIS防尘罩|GIS防尘蓬|可移动GIS防尘棚设备
首页 | 关于我们 | 解决方案 | 工程案例 | 客户中心 | 1946浼熷痉瀹樻柟缃戠珯 | 1946浼熷痉澶囩敤缃戝潃 | 1946浼熷痉瀹樼綉
深圳、佛山、东莞、中山、江门、惠州、广州净化工程公司|无尘车间|洁净室|无尘室|净化车间|净化厂房|洁净厂房|洁净车间|洁净棚|GMP车间|GMP厂房等空调洁净工程施工及服务
拓展阅读:10万级净化车间标准|实验动物房|中央厨房|洁净室换气次数|洁净手术室规范|GMP洁净度等级|食品生产卫生规范|洁净厂房施工要点|无尘车间着装规范
Copyright © 2012-2018
Baidu
map