什么是负压隔离病房 ?

文章来源://www.capeel.com/  2020年02月03日  点击数:17878

什么是负压隔离病房 ? 

     所谓负压隔离病房,就是病房内外有压力差,经过特殊的装置使病房内的气压低于病房外的气压。负压系统启动后,使病房外清洁气体单向压入病房,房内空气“挤压”后排到专门管道,经严格消毒后排出。同时每小时可启动12到15次为病房换气。负压系统将病房内流通的空气全部抽走,经过过滤装置隔离过滤、消毒灭菌处理,过滤率达到99.99%,随后形成洁净空气排出病房,使周边空气不受污染。负压病房还拥有中央空调、中央供氧,保持恒温、恒氧。

     每间负压病房外都设有一小间缓冲区,那是医务人员进入病房的通道。缓冲区与病房的墙体开了一个窗口,医务人员称其为“传递舱”。传递舱装有两扇窗,将病房和缓冲区连接起来,为了确保病毒隔离,两扇窗绝不能同时打开。舱内有排列整齐的紫外线灯管,可对进出食品、物品进行消毒,以保证内外空气不交叉感染。

     医生进入负压隔离病房前要穿三层隔离衣,戴N95口罩,面罩。治疗结束后要层层脱掉隔离衣,用消毒液多次洗手,再洗澡后从专用通道离开。(www.capeel.com)

     负压隔离病房是救治呼吸道传染病人,隔离病原微生物及保护医务人员的重要医疗设施,是应对公共卫生事件的重要保障,特别适合救治sars、禽流感、甲型H1N1流感等强传染性呼吸道病人。

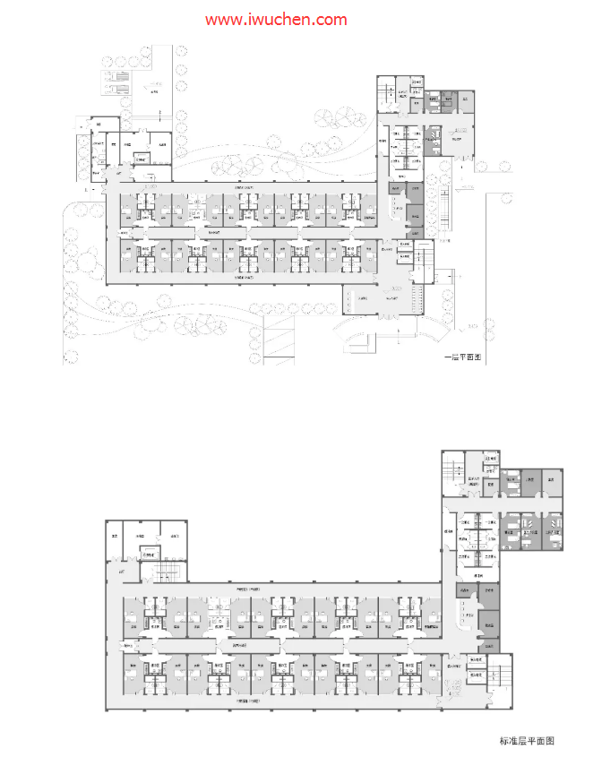
以福州肺科医院负压隔离病房楼投标方案为例


     早在2003年冬春交接之际,我国爆发了非典型肺炎。那次疫情给广大人民群众的身体健康和生命安全造成了严重的威胁,也给生活带来很大的负面影响。为了适应传染病防治工作和突发疫情的需求,给社会提供不污染周围环境的传染病医院,同时也给一线医护人员提供安全的工作环境,所以在2010年福州肺科医院就启动了负压隔离病房楼的投标项目,现在看来,真是具有前瞻性。


01 

 / 设计指导思想 /

      1、一切以病人为中心,方便病人治病,方便医生行医。

      2、设计应符合中华人民共和国颁发的有关设计规范和规定,符合福州市城市建筑法规和规则,符合环保、卫生、消防、防疫、交通、市政、绿化等要求和指标。

      3、功能分区合理,流线清晰、洁污分流,避免或减少交叉感染。

      4、建筑布局紧凑、交通便捷、管理方便,并与原有保留建筑形成完整肌体。

      5、确保各功能部门环境安静和相对独立。

      6、保留完善的集中绿化用地。

02

 /建筑单体设计 /

PART1:平面布局及功能

     病房在建筑布局上,划分清洁区、潜在污染区和污染区,不同的区域之间设置缓冲间,每间病房设置独立卫生间,病房内压力控制方面的负压程度由高到底保持相对压力。

     一层至四层:病房20间,为疑似、轻重症病人收住区,负压配置送排风净化装置要求相对低些,平时可开窗通风。

     五层:病房20间,为收治危重症、气管插管等患者,即负压TCU病房。

     六层:负压手术室,部分医技用房,会诊室,以及医护人员休息室等。

 PART2:功能房间

       病房:每间病房均设置1张病床。病室内应设置氧气、吸引等床头治疗设施的接口装置(或留有放置氧气瓶和吸引器的空间)及呼叫、对讲设施。床边有足够放置床边X光机、呼吸机等设备的空间,并留有医护人员抢救病人的操作空间。病室朝向医务人员工作走廊一侧应设大尺寸透明观察窗,以便于观察患者病情。病室与医务人员工作走廊间设双门密闭传递窗,用于为患者传递食物、药物等。

     缓冲间:设流动水洗手设施、污染隔离服收集器具及免接触手消毒器。缓冲间通向工作走廊及病室的门应安装闭门器,门上设置观察窗,且门的宽度保证体积较大的医疗设备能够进出。缓冲间的双门为连锁门,当其中一道门打开时,另一道门自动处于关闭状态。

     卫生间:设坐便器、带坐位的沐浴器(或留有坐椅的空间)、流动水洗手设施等,且安装紧急呼叫装置。考虑卫生间与外走廊(清污走廊)间设双门密闭传递窗,用于传递污物、废弃物等。卫生间通向病室的门安装闭门器。

     围护结构:病房(含缓冲间、卫生间)围护结构内表面光滑耐腐蚀、防水,以易于消毒清洁。所有缝隙加以可靠密封。观察窗及所有玻璃窗为密封结构,所有玻璃为不碎玻璃。地面无渗漏,光洁但不滑。天花板、地板、墙间的交角应为圆弧形且可靠密封。


◎负压隔离病房扩展小资料:     

1. 应设在相对独立的区域,即可独成一体,也可集中设置于建筑的一端。      

2. 负压隔离病房排风口与周围公共建筑的距离至少在20m以上。     

3. 内部分为清洁区、潜在污染去和污染区,各区应相对集中布置,并能有阻隔空气传播的物理屏障和警示标志。        

4.宜采用单人间设计,每间病房内应设置独立的卫生间。         

5. 室内净高度不应小于2.6m,如无特殊要求,高度也不宜大于3.0m。     

6.  负压隔离病房应在与其相邻的走廊的潜在污染区的墙上设置内外侧窗门互锁的传递窗,传递窗结构应密闭。      

7.  通向外界的门应向外开启,内门应向静压大的一侧开启。     

8.  负压隔离病房宜设不可开启的密闭窗并加装窗帘等遮挡装置。      

9.  不同污染等级区域压力梯度的设置应符合定向气流组织原则,应保证气流从清洁区→潜在污染区→污染区方向流动。      

10.相邻相通不同污染等级房间压差(负压)不小于5Pa,负压程度由高到低依次为病房卫生间、病房房间、缓冲间与潜在污染走廊。清洁区气压相对室外大气压应保持正压。     

11.  通风空调送风系统应按清洁区与污染区(含潜在污染区)分别独立设置。      

12.  排风口应远离进风口和人员活动区域,并设在高于半径15m范围内建筑物高度3m以上的地方,应满足距离最近的建筑物的门、窗、通风采集口等的最小距离不少于20m。     

13.  负压隔离病房污染区和潜在污染区的换气次数宜为10次/h~15次/h,人均新风量不应少于40m3/h;负压隔离病房清洁区的换气次数宜为6次/h~10次/h。     

 14. 负压隔离病房的温度宜控制在20℃~26℃范围内。     

15. 负压隔离病房的噪声应不大于50dB(A)。      

16. 负压隔离病房的照度应不小于50lx。

更多
相关文章:
传染病医院(负压病房,传染病区)的设计原则与要求
医院负压病房的全面设计与施工要点
医院负压隔离病房区(负压病房、传染病房)空调设计
负压隔离病房(传染病隔离房)的隔离通风分析与设计
新型冠状病毒负压隔离病房的设计与施工

上一条:QS认证对食品生产场所洁净车间的要求下一条:无
首页 | 关于我们 | 解决方案 | 工程案例 | 客户中心 | 1946浼熷痉瀹樻柟缃戠珯 | 1946浼熷痉澶囩敤缃戝潃 | 1946浼熷痉瀹樼綉
深圳、佛山、东莞、中山、江门、惠州、广州净化工程公司|无尘车间|洁净室|无尘室|净化车间|净化厂房|洁净厂房|洁净车间|洁净棚|GMP车间|GMP厂房等空调洁净工程施工及服务
拓展阅读:10万级净化车间标准|实验动物房|中央厨房|洁净室换气次数|洁净手术室规范|GMP洁净度等级|食品生产卫生规范|洁净厂房施工要点|无尘车间着装规范
Copyright © 2012-2018
Baidu
map