《洁净建筑设计原理》课程设计任务书
一、 设计意义和目的
《洁净建筑设计原理》是建筑学专业的一门专业选修课。该课程主要介绍工业洁净室建筑设计的原理及方法。《洁净建筑设计原理》课程设计是为使学生加深对该课程的理解而设立的一个学习环节,旨在通过洁净建筑设计练习深入了解和掌握该类型建筑的设计方法和内涵。
二、 设计题目和内容
1、 设计题目:某洁净建筑方案设计
2、 设计内容:
1学生从附录给出的洁净室参考图中选定一种平面形式(一层或二层),将其细化,并自行选定一建筑地点。
2布置总平面
3进行立面和体型设计。
三、 设计要求及表现
1、 设计要求:
1)总平面设计应体现洁净环境的处理
2)平面细化设计应注意表达清楚建筑物中人流及物流净化路线
3)立面及体型设计应体现洁净室的功能及特征
2、 设计图纸:1#图一张或两张。绘出总平面、平面、立面、剖面及透视图。
3、 表现方法:钢笔淡彩(也可以采用其它表现形式)
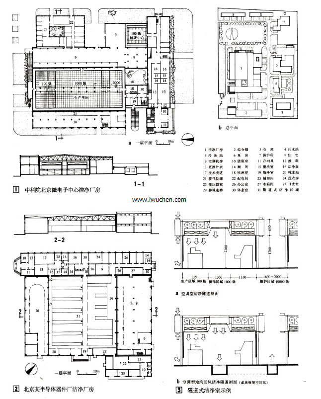
附录:洁净室平面参考图:

